【アバック梅田】ホームシアター施工例 と ホームシアターデザイン

平素より当店をご利用いただき誠にありがとうございます。
今回は「ホームシアターデザイン」についてのご説明・ご案内です。
掲載にご協力いただきましたお客様にはこの場を借りて深く御礼申し上げます。
誠にありがとうございます。
数多くの施工例がございますが、新築・リフォームでのホームシアター導入にあたり、施工例に掲載されている殆どのお客様より「ホームシアターデザイン(別名 インストール)」と呼ぶサービスをご依頼いただき、完成に至っております。
「ホームシアターデザイン」とは
”ホームシアター導入における 建築での仕込み や 今後の楽しみ方 に必要となる土台作り”
です。
「ホームシアターデザイン」のご依頼は任意であることと、
あくまでも、当店でホームシアター機材一式をご購入いただく際のオプションとして承っている有料のサービスです。
ご依頼いただくことで、より完成度が高いホームシアターでお楽しみいただける環境を整えることが出来ます。
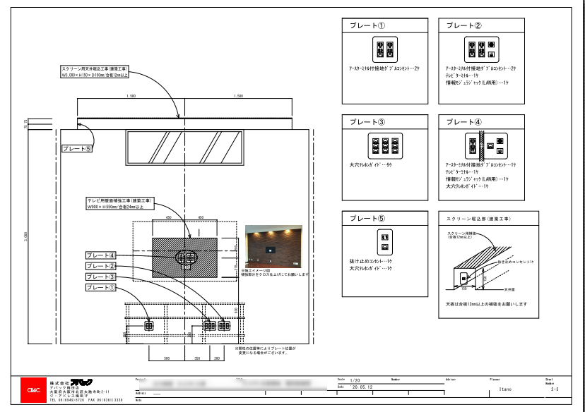
※デザイン図面の例(一部)
お客様のご要望を伺いながら、例えば
「用途に合った機材の選別」
「各種機材の収納方法やレイアウトの構想」
「建築業者様との打合せ」
「現場確認・指示・完成後の確認と使用方法のご説明」
といった内容を含めた計画を立てて進行して参ります。
※機器の設置工事・調整 や 費用 については別途ご相談
つまり ”決められた形のシステム” ではなく、
お客様の楽しみ方や環境に沿った ”フルカスタマイズでのホームシアターシステム”
を完成させることができます。
ただし、
ご相談のタイミングや建築の内容によっては、ご依頼いただけない場合、あるいは、そもそも必要ではない場合がございます。
お客様それぞれに、お住いの計画やタイミングは異なりますため、詳しくはご相談くださいませ。
また、機材一式のご提案・ご提供のみのご相談も、お気軽にご相談ください。
===
【具体的なサービス内容の一例】
1. ご依頼の流れ
機材の選定・お見積
「デザイン」依頼の受付(有料サービス)
現地調査または図面確認
デザインプランのご提案
現場指示図面・仕様書の提出
2. ご提供する内容
機材設置に関するレイアウト図面
配線計画書
必要に応じた推奨補強・防音に関するアドバイス
プロジェクター・スクリーン位置図
スピーカーレイアウト(ドルビー推奨規格等に準拠)
等々
3. 業務範囲と責任について
・当店の責任範囲
ご購入機材の適切な設置計画の作成
設置後の動作確認
・当店が責任を負いかねる事項
建築業者様による補強工事や配管工事の施工不良
建物側の構造・下地の不備に起因するトラブル
ご購入機材以外の機器や工事に関する不具合
4. お客様にご確認いただく事項
工務店・建築業者様との調整はお客様を介して行います。
特殊工事(防音・造作・電気配線など)は、施工業者様の責任にて実施いただきます。
工事前に当店からの指示図面を必ず施工業者様へご確認ください。
5. アフターフォロー
アップグレード等、お買い換え時のご相談
音質・画質アップのためのご相談
機材不具合時のご相談
機材初期不良・保証内対応のご相談(機材の保証以外の内容については有償)
機材再接続・再調整(有償)
デザイン変更・機材追加時の再設計(別途お見積)
===
以上、ホームシアター導入に向けての参考としていただき、素敵な楽しい生活となりますよう、お役に立てましたら幸いです。
アバック梅田 吉田
※ご来店・ご試聴の際には、アポイントをお取りいただくことをオススメしております。お電話や以下のフォームよりご依頼ください。
※定休日 火曜日・水曜日にご連絡いただいた場合には、木曜日に受付のうえでご返信差し上げます。あらかじめご了承くださいませ。
遠方のお客様におかれましては、通販サイトからの購入だけでなく、アバック梅田へのメール・お電話でご相談のうえでのご注文もご利用いただけます。
支払方法は振込やクレジットカード、Webクレジットにて承ります。
530-0051
大阪府大阪市北区太融寺町2-11
ジ・アドレス梅田 1F
【MAP】https://x.gd/z6MLC
営業時間
平日・土・日・祝 11:00~19:00
定休日 火曜日・水曜日
メールアドレス:osaka-umeda@avac.co.jp
TEL:06(6949)8726
FAX:06(6361)3339
■ご来店 道案内

YouTube: 【アバック公式】vol.11~梅田店に行ってみた!~#ホームシアターのアバック
日頃のご愛顧に感謝を致しまして、Audio & Visual製品の下取査定額を最大30%UP!
ご愛用されていたAV機器をお特に下取に出していただき、かつ、お得に新しい製品をお求めいただけるキャンペーンとなっております。
【最大30%UP!】となる下取り特典
【特典①】下取査定を通常査定額より20%UP!!
【特典②】以前、弊社でご購入いただいた製品を下取に出された場合、査定額が更に10%UP!!
より詳しくは、合わせて 本キャンペーンのページ をご確認くださいませ。
【アウトレット品のご紹介】
KEF LSX II LT 開封未使用品 ※1点限りhttps://corp.avac.co.jp/shopblog/archives/umeda/20250714
■当店オリジナル 映像チェック用 高画質4Kブルーレイディスク「Great View」ご好評いただいております!!店頭在庫あり!
https://corp.avac.co.jp/shopblog/archives/umeda/20250208/

530-0051
大阪府大阪市北区太融寺町2-11
ジ・アドレス梅田 1F
【MAP】https://x.gd/z6MLC
営業時間
平日・土・日・祝 11:00~19:00
定休日 火曜日・水曜日
メールアドレス:osaka-umeda@avac.co.jp
TEL:06(6949)8726
FAX:06(6361)3339
■アバック公式アプリ
APP STORE
Google Play










